Blog

  • Modern Duplex Home Designs are A Smart Choice for Today’s Lifestyle

    Modern Duplex Home Designs are A Smart Choice for Today’s Lifestyle

    In today’s dynamic housing market, duplex homes are emerging as a top design choice for homeowners, real estate investors, and developers alike. Their versatile layouts, affordability, and ability to accommodate multigenerational living make them a practical and stylish solution for modern living. At WL Martin Homes, we offer innovative and thoughtfully designed duplex house plans that blend functionality with contemporary aesthetics.

    Whether you’re a developer building multiple units or a homeowner seeking a flexible housing solution, our duplex plans are tailored to meet today’s needs. Let’s explore why duplex homes are a popular trend and highlight two of our most modern designs that perfectly reflect this growing demand.

    The Growing Popularity of Duplex Homes

    Duplex homes, consisting of two independent living units under one roof, have become increasingly popular in North America. Here’s why:

    1. Cost-Effective Living: Duplexes allow homeowners to reduce costs by sharing expenses, such as land and utility costs, while still enjoying privacy.
    2. Multigenerational Living: According to the National Association of Realtors, multigenerational living has risen steadily in recent years, as families seek solutions for aging parents, adult children, and extended family members. A duplex offers the perfect setup.
    3. Rental Income Potential: For investors or homeowners looking for passive income, one unit can be rented while the other is occupied, providing an excellent return on investment.
    4. Space Efficiency: Duplex homes maximize land use, which is ideal in today’s competitive real estate market, especially in urban areas.

    Modern Duplex Plans That Meet Your Lifestyle Needs

    At WL Martin Homes, our duplex home designs combine style, comfort, and efficiency. Below, we highlight two versatile and modern designs that exemplify the best of what duplex living can offer:

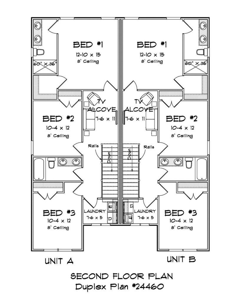
    1. Plan ID: 24460 – Compact and Efficient

    • Plan Highlights:
      • Square Footage: 1,125 sq. ft. per unit
      • Bedrooms: 3 bedrooms per unit
      • Bathrooms: 2 bathrooms per unit
      • Design Style: Clean lines and open-concept layouts perfect for a modern lifestyle.
    • Why It’s Perfect:
      This plan maximizes space without compromising comfort. Each unit has its own private entrance, ample storage, and well-lit living areas. It’s ideal for developers seeking an affordable duplex option or families looking for shared yet independent living spaces.

    Learn more about this design here: View Plan ID 24460.

    2. Plan ID: 24479 – Spacious and Stylish

    • Plan Highlights:
      • Square Footage: 1,450 sq. ft. per unit
      • Bedrooms: 3 bedrooms per unit
      • Bathrooms: 2.5 bathrooms per unit
      • Design Style: Modern architecture with elegant touches like large windows, vaulted ceilings, and a spacious kitchen.
    • Why It’s Perfect:
      This design offers plenty of space for families while maintaining a cozy and inviting feel. The layout encourages functionality with open-concept living areas, generous bedroom sizes, and outdoor space. Developers will appreciate its modern appeal and strong rental or resale potential.

    Explore this design in detail: View Plan ID 24479.

    Why Choose WL Martin Homes for Your Duplex House Plans?

    At WL Martin Homes, our goal is to provide high-quality, modern house plans that meet the unique needs of developers, builders, and homeowners. Here’s what makes us the trusted choice:

    • Innovative Designs: Our plans feature the latest trends in architecture, ensuring homes are both functional and visually appealing.
    • Customization: We understand that every project is unique. Our plans are adaptable to suit specific requirements, whether it’s layout adjustments or foundation changes.
    • Comprehensive Plans: Our plans include everything you need to get started: front and rear elevations, detailed floor plans, roof plans, foundation plans, and more​.
    • Support for Developers: We make the building process smoother by providing designs that appeal to modern buyers and renters, maximizing value for developers.

    Invest in Modern Duplex Designs

    Duplex homes are not just a smart financial investment—they’re a lifestyle solution that fits the demands of today’s families, renters, and investors. At WL Martin Homes, we offer a variety of modern duplex plans that combine functionality, elegance, and affordability.

    Whether you’re drawn to the efficient layout of Plan 24460 or the spacious elegance of Plan 24479, our duplex designs are the perfect foundation for your next project.

    Explore all our house plans today and discover why WL Martin Homes is the go-to choice for modern duplex designs.

  • Why Customizable House Plans Are Ideal for Developers

    Why Customizable House Plans Are Ideal for Developers

    In the fast-paced world of real estate development, success often hinges on the ability to adapt and deliver homes that truly resonate with buyers. Customizable house plans empower developers to meet these demands, combining efficiency, flexibility, and market appeal in a way that sets projects apart from the competition.

    Customizable house plans offer developers the flexibility and efficiency needed to meet diverse client demands and adapt to varying market conditions. Here’s why investing in customizable house plans is a strategic move for developers:

    1. Tailored to Market Demands

    Customizable house plans enable developers to modify designs to align with current housing trends and buyer preferences. For instance, the National Association of Home Builders reports that 67% of home buyers prefer single-family detached homes, with a significant number desiring open floor plans and modern amenities.

    By utilizing customizable plans, developers can adjust layouts and features to cater to these preferences, enhancing market appeal.

    2. Cost-Effective Design Solutions

    Purchasing pre-designed, customizable house plans is often more economical than commissioning entirely new designs. This approach provides a solid foundation that can be adjusted as needed, saving time and reducing architectural fees. Additionally, customizable plans can help avoid costly construction errors, as they are typically well-vetted and adhere to standard building codes.

    3. Accelerated Project Timelines

    Time is a critical factor in development projects. Customizable house plans expedite the design phase, allowing developers to move swiftly to permitting and construction. This efficiency not only reduces holding costs but also enables quicker responses to market opportunities, providing a competitive edge.

    4. Simplified Permit Acquisition

    Navigating the permitting process can be complex and time-consuming. Customizable house plans are often designed with compliance in mind, incorporating typical wall sections, foundation details, and roof plans that meet standard regulations. This foresight facilitates smoother permit approvals, minimizing delays.

    5. Enhanced Buyer Satisfaction

    Offering customizable features allows buyers to personalize aspects of their future homes, increasing satisfaction and perceived value. Whether it’s adjusting room layouts or selecting specific finishes, this flexibility can be a significant selling point, leading to quicker sales and potentially higher profit margins.

    6. Adaptability to Diverse Locations

    Developers often work across various regions, each with unique environmental factors and building codes. Customizable house plans can be tailored to accommodate these differences, such as adapting to different foundation types or incorporating design elements suitable for specific climates, ensuring compliance and durability.

    7. Future-Proofing Developments

    The housing market is dynamic, with trends evolving over time. Customizable house plans provide the flexibility to incorporate emerging design trends and technologies, such as energy-efficient systems or smart home features, keeping developments relevant and appealing to buyers.

    Customizable house plans offer developers a strategic advantage by providing flexibility, cost savings, and the ability to meet diverse buyer preferences. By leveraging these adaptable designs, developers can enhance project efficiency, ensure compliance, and ultimately deliver homes that resonate with today’s market demands.

  • A Developer’s Guide to Finding Customized House Plans over Pre-Designed Models

    A Developer’s Guide to Finding Customized House Plans over Pre-Designed Models

    For home developers, the choice between customized house plans and pre-designed models can make all the difference in the success of a project. While pre-designed house plans may seem convenient, they often lack the flexibility to meet specific buyer demands or adapt to unique building sites. Customized house plans, on the other hand, offer the ability to tailor designs to your exact needs, ensuring your homes stand out in a competitive market.

    If you’re a developer looking to build homes ranging from 400 square feet to 2,500 square feet, understanding the benefits of customized house plans can help you make smarter decisions—and deliver better results for your buyers.

    Why Customized House Plans Outperform Pre-Designed Models

    1. Better Fit for Buyer Preferences
      Today’s homebuyers expect more personalization in their living spaces. Customized house plans allow developers to include trending features like open-concept kitchens, energy-efficient layouts, or multigenerational spaces. With a tailored plan, you can cater directly to the market demands in your area.
    2. Adaptability to Unique Lot Conditions
      Not all plots of land are created equal. Sloping lots, unusual dimensions, or local zoning requirements may render a pre-designed plan impractical. Customized house plans provide the flexibility to design around site-specific challenges while maximizing usable space.
    3. Branding Your Development
      Offering unique, tailored homes sets you apart from competitors relying on generic pre-designed models. A customized house plan can reflect your brand’s commitment to quality, creativity, and buyer satisfaction.
    4. Improved Cost Efficiency
      While customized plans may seem more expensive upfront, they often lead to cost savings during construction. You avoid costly adjustments required to retrofit a pre-designed plan and can incorporate budget-conscious features into the design from the start.

    What Developers Should Look For in Customized House Plans

    When selecting a partner for customized house plans, it’s crucial to prioritize flexibility and quality. Here’s what to look for:

    • Comprehensive Details
      Ensure the plans include everything from floor layouts and ceiling notes to foundation details and roof pitches. These details reduce guesswork and streamline the construction process.
    • Adaptability for Custom Features
      The best house plans allow for easy inclusion of popular amenities like smart home technology, energy-efficient materials, or extra storage solutions.
    • Scalability Across Home Sizes
      Whether you’re building a cozy 400-square-foot home or a spacious 2,500-square-foot family residence, the ability to scale and adjust plans ensures they meet diverse buyer needs.
    • Support for Local Requirements
      Building codes, zoning regulations, and environmental considerations vary widely. A good plan should be designed to accommodate these, saving time and avoiding delays.

    How Developers Benefit from W.L. Martin Home Designs

    At W.L. Martin Home Designs, we specialize in house plans that provide the perfect blend of customization and practicality. For developers, this means:

    • Starting Points with Flexibility
      Our plans serve as a foundation that can be adapted to suit specific buyer needs, regional styles, or site requirements.
    • Variety of Sizes and Styles
      With house plans ranging from compact designs to larger layouts, we help you cater to diverse markets while keeping your portfolio fresh.
    • Comprehensive, Builder-Friendly Designs
      Each plan includes essential details, like electrical layouts, foundation options, and roof plans, making them ideal for developers who value efficiency without sacrificing quality​.
    • Optional Customizations Without Extra Hassle
      Whether you need extra features like full building sections for Canadian permits or specialized layouts for hurricane zones, our designs offer the flexibility to meet your needs​.

    Tips for Finding the Right Customized House Plans

    1. Research Your Market
      Analyze the local demand for features like energy efficiency, multigenerational layouts, or smart home integration. Look for house plans that allow you to incorporate these seamlessly.
    2. Work with Flexible Designers
      Partner with professionals who can provide plans that adapt to your projects, rather than limiting you to a rigid template.
    3. Emphasize Scalability
      Choose plans that can scale up or down to suit different lot sizes and buyer preferences, maximizing your development options.
    4. Consider Long-Term Trends
      Focus on designs that can evolve with buyer needs, such as homes prepared for aging in place or eco-friendly living.

    Customized Plans for Smarter Development

    Choosing customized house plans over pre-designed models is about building smarter. Developers who embrace this approach gain the ability to tailor homes to their market, optimize costs, and stand out in a crowded industry.

    With W.L. Martin Home Designs, you’ll find a partner committed to delivering house plans that work for your unique projects. Explore our customizable options today at wlmartinhomes.com and discover how we can help you build homes that buyers love—and that make your developments a success.

  • The Rise of Multigenerational Living and Designing Homes for Extended Families

    The Rise of Multigenerational Living and Designing Homes for Extended Families

    The housing market is changing in some ways as multigenerational living becomes increasingly popular. More families are choosing to live under one roof, whether to accommodate aging parents, adult children returning home, or simply to pool resources for financial stability. For developers, this trend opens up new opportunities within a growing market that demands homes cleverly designed for extended families.

    At W.L. Martin Home Designs, our versatile house plans provide an ideal starting point for developers looking to cater to this evolving need. From layouts with private in-law suites to homes with flexible spaces, we make designing for multigenerational families straightforward and effective.

    Why Multigenerational Living is on the Rise

    Multigenerational households have grown by more than 20% in the past decade, with several key factors driving the trend:

    1. Economic Benefits
      Rising housing costs and economic pressures are leading families to consolidate their living arrangements. Sharing a home allows families to reduce expenses while maintaining a higher standard of living.
    2. Aging in Place
      Many families are choosing to care for elderly relatives at home rather than rely on senior living facilities. Homes designed with aging parents in mind—such as those with main-level bedrooms or wheelchair-accessible layouts—are highly desirable.
    3. Cultural Traditions
      Multigenerational living is deeply rooted in many cultures, where extended family members traditionally share a home. Developers who design with this in mind can tap into a wide and growing demographic.
    4. Family Support
      In an age of busy schedules, families living together can provide built-in childcare, elder care, and emotional support, making multigenerational homes an attractive option.
    multi-family house plan

    Essential Features for Multigenerational Home Designs

    To accommodate extended families, homes must go beyond the typical single-family layout. Here are some features that developers should consider incorporating into house plans:

    • Separate Living Spaces
      Private in-law suites with separate entrances, mini-kitchens, and bathrooms offer independence while keeping family close.
    • Flexible Floor Plans
      Open-concept living areas paired with quiet, private retreats allow for both family bonding and personal space.
    • Main-Level Bedrooms
      For elderly family members, main-level bedrooms with attached bathrooms provide convenience and accessibility.
    • Additional Bathrooms
      Multigenerational living often requires more bathrooms to avoid congestion during busy mornings or evenings.
    • Ample Storage
      Larger households generate more belongings. Smart storage solutions, including walk-in closets and built-in cabinetry, keep clutter under control.
    • Dual Kitchens or Kitchenettes
      Homes with two kitchens—or a kitchenette in a separate suite—are particularly appealing for families that value culinary independence.

    Multigenerational Living Meets Modern Design

    A home built for extended families doesn’t have to sacrifice style or comfort. Developers can incorporate modern aesthetics into functional layouts that meet the needs of multigenerational households. Features like open-concept kitchens, integrated outdoor spaces, and natural lighting make homes feel spacious and welcoming.

    mult-family house plan

    At W.L. Martin Home Designs, our plans range from 200 to 5,000+ square feet, offering a variety of options to suit multigenerational living. Developers can start with a standard plan and easily adapt it to include features like in-law suites, dual master bedrooms, or additional living spaces to meet their buyers’ needs.

    How Developers Can Tap Into the Multigenerational Market

    Building homes for multigenerational families doesn’t just serve an emerging trend—it’s a smart business move. By providing house plans that cater to these unique needs, developers can:

    • Attract a broader range of buyers, including multi-income families and culturally diverse households.
    • Stand out in a competitive housing market by offering specialized designs that prioritize both privacy and togetherness.
    • Future-proof developments by anticipating ongoing demand for multigenerational living solutions.

    When developers select house plans from W.L. Martin Home Designs, they benefit from customizable layouts that make it easy to accommodate extended families. Our plans are designed to be flexible, functional, and stylish—meeting the demands of today’s buyers while staying adaptable for tomorrow’s trends.

    The Future of Multigenerational Living

    As more families choose to live together, the need for homes that support multigenerational living will only grow. By designing homes with flexibility, comfort, and privacy in mind, developers can take advantage of this trend while making a meaningful impact on the lives of the families they serve.

    Explore our collection of multigenerational-friendly house plans today at wlmartinhomes.com and see how we can help you create homes that bring families together.

  • Why Tiny Home Plans Are a Smart Investment for Modern Housing Developments

    Why Tiny Home Plans Are a Smart Investment for Modern Housing Developments

    Over the past decade, the housing market has gone through somewhat of a transformation. Tiny homes, compact dwellings typically ranging between 100 and 400 square feet, have captured the imagination of both homeowners and developers. These homes offer more than just a smaller footprint; they embody a shift in how we think about living spaces, prioritizing affordability, sustainability, and smart design. For developers, tiny home plans represent a creative solution for meeting housing demands while catering to modern lifestyles.

    Tiny homes resonate with a wide variety of people, from young professionals and first-time buyers to retirees seeking to downsize. But they’re not just for individuals. Entire developments of tiny homes are springing up, creating communities that emphasize shared values, efficient land use, and a simplified way of life. This trend has been propelled by growing awareness of housing affordability issues and the desire for environmentally friendly living.

    tiny home plan

    Why Tiny Homes Work

    Tiny homes are often designed to maximize efficiency without sacrificing comfort. Developers usually enjoy the challenge of designing spaces that make every square foot count. From open floor plans that eliminate unnecessary walls to clever built-in storage solutions, these homes deliver a balance of practicality and style in a small footprint. The compact size naturally encourages a minimalist lifestyle, but it’s the thoughtful details that make them livable and enjoyable.

    Energy efficiency is another major selling point. Tiny homes require fewer resources to build and maintain, meaning they have a lower environmental impact. For developers, this is an opportunity to meet growing demand for green housing options. Pairing tiny home plans with energy-efficient appliances, sustainable building materials, and renewable energy sources like solar panels not only benefits the planet but also appeals to eco-conscious buyers.

    Affordability is a central factor in the rise of tiny homes. The cost to build a tiny home is significantly lower than traditional housing. Some estimates of tiny homes put the average price around $23,000. This affordability makes them particularly attractive to young buyers and developers working on budget-conscious residential projects. Furthermore, their smaller size allows for higher density developments, maximizing the use of available land without overcrowding.

    Tiny Homes in Action

    The impact of tiny homes can be seen in many areas around the United States and within certain housing initiatives. Urban areas, for example, are adopting tiny homes to address housing shortages while revitalizing unused spaces. In suburban and rural areas, these homes are being developed as affordable starter communities or retirement villages. Developers are also exploring tiny home plans for vacation rentals, creating compact, modern cabins that fit seamlessly into nature.

    Tiny homes aren’t just for private buyers, they are becoming a key part of larger developments and lifestyles. Some projects involve clusters of tiny homes designed as co-housing communities, where residents share communal spaces like gardens, kitchens, or recreation areas. This model fosters a sense of community while keeping costs low for developers and buyers alike.

    Designing with Purpose

    At WL Martin Home Designs, we understand the unique demands of designing for tiny home living. Our tiny home plans are created with developers in mind, offering flexibility for customization while maintaining the high standards required for successful builds. Those looking to develop an eco-friendly community, an affordable housing project, or a collection of investment properties, our tiny home plans are tailored to meet specific needs.

    tiny home plan

    The design process of our homes, including tiny homes, goes beyond simple aesthetics. We include many features like open layouts, natural lighting, and dual-purpose furniture spaces that feel larger than they are. Moreover, we ensure our plans align with local building codes and regulations, simplifying the permitting process for developers.

    We believe that the tiny home movement is more than a passing trend or something that will fade away in our lifetime. It’s a reflection of evolving needs in housing. Developers who embrace such a shift are not only meeting the demands of today’s market but also laying the groundwork for a more sustainable future. Tiny homes demonstrate that smart design and creative solutions can redefine what we expect from residential developments and the future of homebuilding.

    If you’re a developer looking to bring innovation and value to your next project, explore our collection of expertly crafted tiny home plans at WL Martin Home Designs. With designs that balance form, function, and affordability, we’re here to help you create communities that thrive.

vaycasinovaycasinothailand digital arrival cardprimebahishacklinkmilbetalgototohttps://algototo.digital/nobartvjudi bolaslot gacordepo 5kslot gacordeposit 5000slot onlineslot online link 5k deposit slot tanpa potongan agb99 deposit 5k deposit 5k dana slot danacasibomcasibom girişpadişahbetbetwoonnitrobahissonbahisgrandpashabetvegabetcasino levantholiganbetholiganbet girişholiganbet güncelholiganbet güncel girişmatbet girişmatbet güncelmatbet güncel girişmilosbetbetofficetimebetcratosroyalbetcratosroyalbet girişcratosroyalbet güncelcratosroyalbet güncel girişcasinolevantcasino levantholiganbet güncelholiganbet güncel girişholiganbet güncel girişmatbetmatbet girişgrandpashabetultrabetenbetgalabethiltonbetpadişahbetsuratbetsüratbetbetplayatlasbetkralbetHoliganbet Girişalmanbahiswinxbetwinxbetalmanbahisholiganbetholiganbet girişmeritkingmeritking girişmeritkingmeritking girişvaycasinovaycasino girişptt kargoptt kargo takipptt kargo sorgulamaptt kargo iletişimaras kargoaras kargo takiparas kargo sorgulamaaras kargo iletişimvegabetvegabetgalabetgalabetvdcasinovdcasinovdcasino